top of page

Retour aux projet en cours

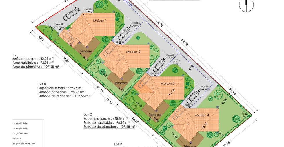
Maisons neuves 105 m² à Thénac

  PRIX DE VENTE. 

Description : 

Construction de 4 maisons neuves d'une superficie habitable de 105 m² comprenant un séjour spacieux, 3 grandes chambres dont une suite parentale avec dressing et salle d'eau, un garage et un cellier. Plancher chauffant, très bonne orientation. proche école, commerces....

bottom of page